Vai al contenuto

Immobiliare FP srl

  • Home
  • Chi siamo
  • Cantieri
    • Trifamiliare Via Stadio – NUOVO
    • Via del Donatore – CHIUSO
    • Via delle Gardenie – CHIUSO
    • Via Gioberti – CHIUSO
  • Contatti

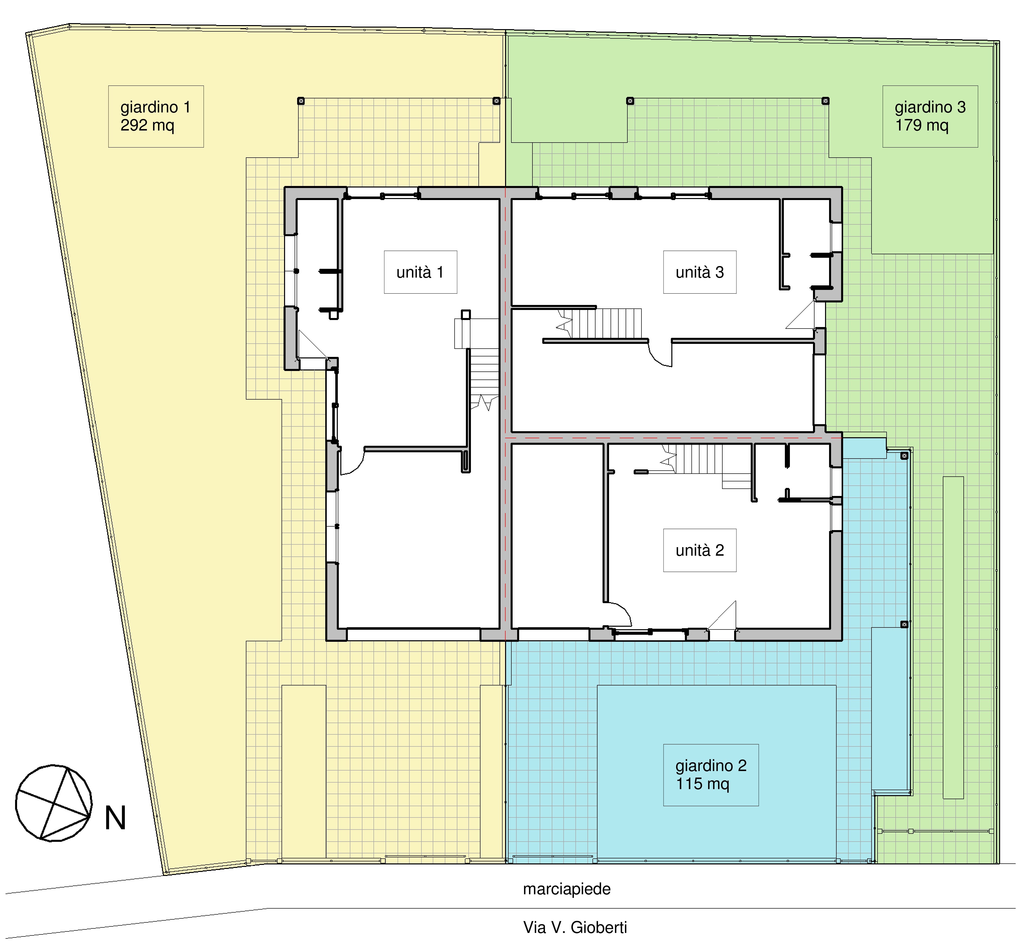
Via Gioberti – Camisano Vicentino

Trifamiliare composta di tre unità indipendenti:

plamimetria-200-demo

Planimetria:

  • Unità 1 VENDUTA: piante – interno – esterno
  • Unità 2 VENDUTA: piante1 – 2 – interno1 – 2 – esterno
  • Unità 3 VENDUTA: piante  –interno – esterno
  • Scarica la brochure
  • Scarica il capitolato
  • Posizione mappa

FOTO CANTIERE

FINITURE

Condividi:

  • Condividi su X (Si apre in una nuova finestra) X
  • Condividi su Facebook (Si apre in una nuova finestra) Facebook
Mi piace Caricamento...
Blog su WordPress.com.
  • Abbonati Abbonato
    • Immobiliare FP srl
    • Hai già un account WordPress.com? Accedi ora.
    • Immobiliare FP srl
    • Abbonati Abbonato
    • Registrati
    • Accedi
    • Copia shortlink
    • Segnala questo contenuto
    • Visualizza articolo nel Reader
    • Gestisci gli abbonamenti
    • Riduci la barra
 

Caricamento commenti...
 

    %d